71711 Steinheim an der Murr
Kompaktes Stadthaus in zentraler Lage
von Steinheim
Kaufpreis: 279.000,00 EUR
Objekt-Nr. 202601
Beschreibung
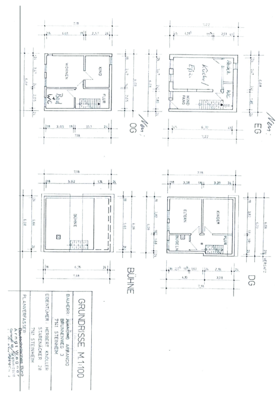
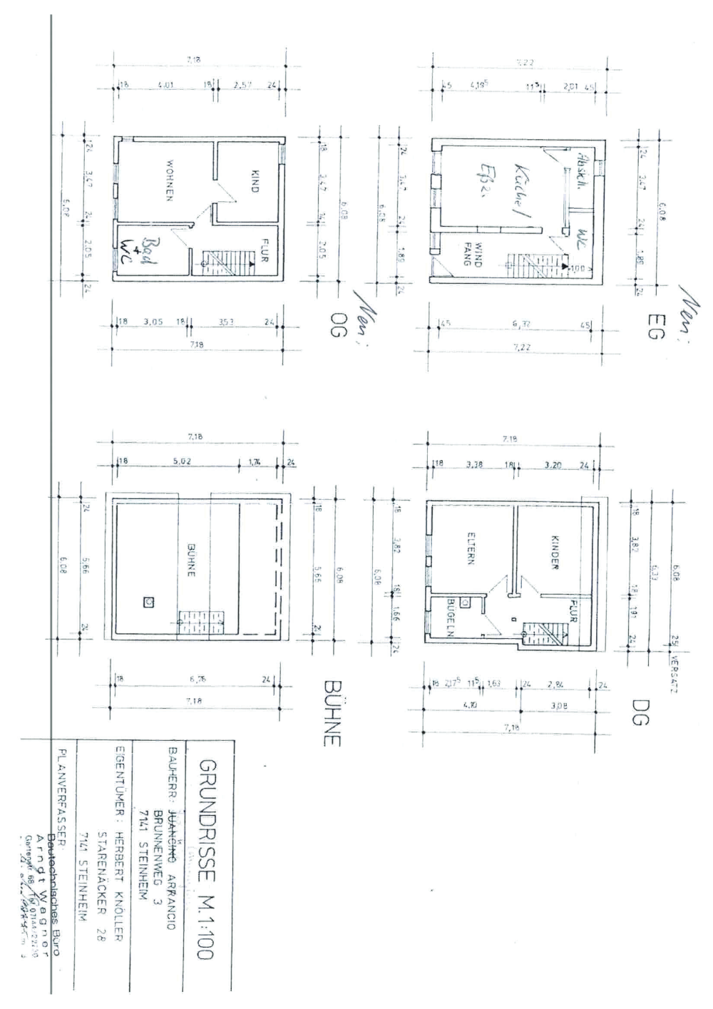
Dieses gepflegte Reihenmittelhaus befindet sich in zentraler Ortslage von Steinheim an der Murr und eignet sich ideal für Eigennutzer, die kompakt, stadtnah und ohne Sanierungsaufwand wohnen möchten. Durch die Kernsanierung und mehrere Modernisierungen präsentiert sich das Haus in einem soliden und sofort nutzbaren Zustand. Die Raumaufteilung über drei Wohnebenen bietet flexible Nutzungsmöglichkeiten.
Ausstattung
Raumaufteilung und Ausstattung:
Das Haus verteilt sich auf drei Wohnetagen mit funktionalem Zuschnitt:
• Erdgeschoss mit Küche und Essbereich
• Obergeschoss mit Schlafzimmern und Bad
• Dachgeschoss mit weiteren Zimmern
• darüber liegende Bühne zusätzlich ausgebaut
Ausstattungsmerkmale:
• erneuertes Dach mit Wärmedämmung 2015
•Erneuerung Fassade mit 10 cm Wärmedämmung 2015
•modernes Badezimmer (2016)
•neue Gas Brennwertheizung (2024)
Ein Keller sowie ein Stellplatz sind nicht vorhanden.
Lage
Steinheim an der Murr gehört zum Landkreis Ludwigsburg und bietet eine gute Anbindung an die umliegenden Zentren. Die Lammgasse liegt zentral im Ortskern, mit kurzen Wegen zu Einkaufsmöglichkeiten, Gastronomie und Infrastruktur des täglichen Bedarfs. Die Lage eignet sich besonders für Käufer, die zentrale Erreichbarkeit schätzen.
Sonstiges
Beschreibung der Stadt Steinheim, siehe auch www.stadt-steinheim.de
Steinheim an der Murr liegt am Eingang zum weinreichen Bottwartal, direkt am Zusammenfluss von Bottwar und Murr. Mit seinen beiden Stadtteilen Kleinbottwar und Höpfigheim zählt die Gemeinde über 12.000 Einwohner. Bereits im Jahre 1955 wurde Steinheim zur Stadt erhoben. Am südwestlichen Ausläufer der Löwensteiner Berge liegt die Landschaft an der Nahtstelle des Verdichtungsraumes zum ländlichen Raum in der Region Mittlerer Neckar. Diese Gegend gehört im dichtbevölkerten Landkreis Ludwigsburg zu den landschaftlich reizvollsten.
Die Stadt an der Pforte zum Bottwartal, wie Steinheim oft genannt wird, verfügt über einen ausgezeichneten Standard öffentlicher Einrichtungen. Einige davon seien beispielhaft erwähnt: 7 kommunale Kinderbetreuungseinrichtungen und ein freier Träger, Grundschulen, Hauptschule mit Werkrealschule, Realschule, Sporthallen und -plätze, Urmensch-Museum, Museum zur Kloster und Stadtgeschichte, Stadtbibliothek, Seniorentreff, Jugendhaus, Mineralwellenfreibad "Wellarium" (gemeinsam mit der Gemeinde Murr) und andere Freizeiteinrichtungen.
Ausdruck eines regen und funktionierenden gesellschaftlichen Lebens sind die über 60 Vereine und Verbände, die im sportlichen, kulturellen und sonstigen Bereich Wichtiges leisten.
Provision: die Angaben zur Provision entnehmen Sie bitte dem Exposé.
Weitere aktuelle Angebote:
- Großzügiges Haus mit Einliegerwohnung und Traumgrundstück - Illingen-Schützingen
- 1- 2-Familienhaus - solide Wohnlage in Illingen
- Wohnen in Bestlage! Großzügiges Einfamilienhaus in Illingen
- Kapitalanlage mit Aussicht! 2-Zimmer-Wohnung 1. OG in Kandel
- Kapitalanlage! 2-Zimmer-Wohnung EG in Kandel
- Fleißige Hände gesucht - Freistehendes Einfamilienhaus in Kürnbach
- Provisionsfrei ! 3-Familienhaus in Neuenbürg-Arnbach
Kontaktformular
Immobilienservice-Scheuermann
Hubert Scheuermann
Am Tiefen See 5/6, 75433 Maulbronn
Telefon. 07043 9596832
Mail: hubert.scheuermann@scheuermann-immo.de

























